
À seulement 10 km au nord-est de Chalon-sur-Saône, découvrez 5 terrains constructibles à Gergy, une charmante commune de Saône-et-Loire réputée pour sa tranquillité et son environnement verdoyant.
Caractéristiques :
- Terrains viabilisés
- Environnement calme
- Proche des transports en commun
Découvrir les terrains
Aménagement du lotissement
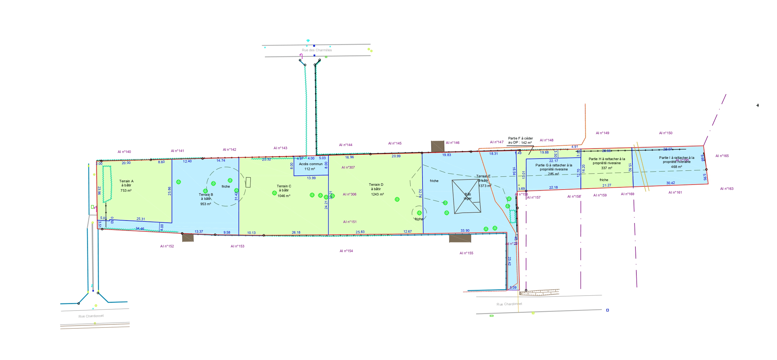
Ces terrains, accessibles par la rue Chardonnet ou la rue des Charmilles, selon leur configuration. Ils bénéficient d’un emplacement au calme, à l’écart de la route principale.
Les parcelles A, B et E sont proposées non viabilisées, tandis que les parcelles C et D sont viabilisées.
Chaque lot offre un cadre idéal pour implanter une maison bois chaleureuse et respectueuse de son environnement.
Caractéristiques et disponibilité
La superficie de ces terrains à vendre est comprise entre 753 m² et 1373 m². Ils sont proposés à partir de 50 000 €.
| LOT | SUPERFICIE DU TERRAIN EN M² | PRIX DE VENTE | DISPONIBILITÉ |
| A | 753 | 50 000 € | LIBRE |
| B | 953 | 50 000 € | LIBRE |
| C | 1046 | RÉSERVÉ | |
| D | 1243 | RÉSERVÉ | |
| E | 1373 | 60 000 € | LIBRE |
Découvrir la commune de Gergy
Située à une vingtaine de minutes de Chalon-sur-Saône, Gergy combine le confort d’un village bien équipé et la douceur de la vie au vert.
La commune dispose de commerces de proximité, d’écoles, d’un accès facilité aux services de santé, ainsi que d’une bibliothèque et d’une maison des jeunes qui dynamisent la vie locale.
Son emplacement stratégique permet de rejoindre aisément les grands axes, à savoir l’A6 (diffuseur Chalon-Nord) à environ 20 km, l’A36 (Seurre) à 25 km et les RD5 et RD94 reliant Chalon, Verdun-sur-le-Doubs et Beaune.
Côté nature, Gergy séduit les amoureux d’espaces verts : bordée par la Saône et entourée d’étangs, de mares et de forêts, elle offre d’agréables sentiers de balade et de nombreuses possibilités pour les activités de plein air.
Envie d’un cadre de vie naturel pour votre projet de maison en bois ?
Contactez notre équipe pour découvrir ces terrains à Gergy et imaginer ensemble une maison qui vous resemble.
