
À mi-chemin entre Beaune et Dijon, découvrez 14 terrains à bâtir situés dans le lotissement Terre de Nuits, au cœur d’un quartier calme et verdoyant.
Ces parcelles sont idéales pour accueillir une maison bois moderne ou traditionnelle, dans un environnement agréable et naturel.
Caractéristiques :
- Terrains viabilisés
- Environnement calme
Découvrir les terrains
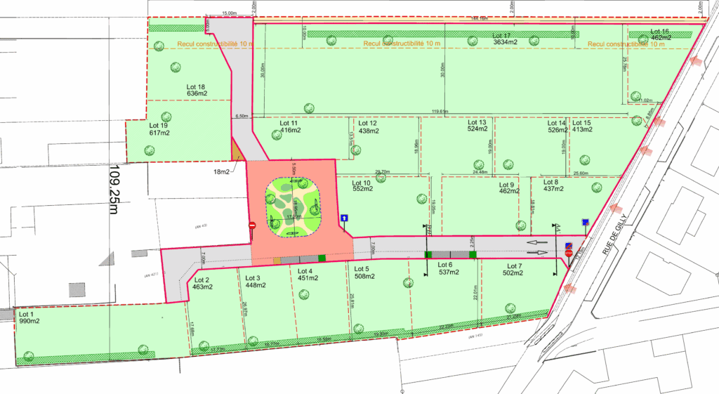
Aménagement du lotissement
Chacun de ces terrains constructibles à Nuits-Saint-Georges dispose d’une viabilisation complète, avec raccordements à l’eau potable, à l’électricité, au gaz, aux télécommunications, ainsi qu’aux systèmes d’évacuation des eaux usées et pluviales.
Le lotissement bénéficie d’une voie d’accès privative et d’un espace vert central, offrant un cadre de vie paisible aux futurs habitants.
Caractéristiques et disponibilité
Les terrains constructibles que nous vous proposons sont disponibles à partir de 95 000,00 €.
| LOT | SUPERFICIE DU TERRAIN EN M² | SUPERFICIE DE PLANCHER MAX EN M² | PRIX DE VENTE | DISPONIBILITÉ |
| 1 | 990 | 495 | 200 000,00 € | LIBRE |
| 2 | 463 | 232 | 105 000,00 € | OPTION |
| 3 | 448 | 224 | 105 000,00 € | LIBRE |
| 6 | 537 | 269 | 120 000,00 € | OPTION |
| 7 | 502 | 251 | 117 000,00 € | RÉSERVÉ |
| 8 | 437 | 219 | 100 000,00 € | OPTION |
| 9 | 462 | 162 | 105 000,00 € | OPTION |
| 10 | 552 | 276 | 125 000,00 € | RÉSERVÉ |
| 12 | 438 | 219 | 95 000,00 € | OPTION |
| 13 | 524 | 262 | 110 000,00 € | LIBRE |
| 14 | 526 | 263 | 110 000,00 € | LIBRE |
| 16 | 462 | 231 | 85 000,00 € | RÉSERVÉ |
| 18 | 636 | 223 | 125 000,00 € | RÉSERVÉ |
| 19 | 617 | 309 | 125 000,00 € | RÉSERVÉ |
Découvrir la commune de Nuits-Saint-Georges
Située au cœur du prestigieux vignoble de la Côte de Nuits, Nuits-Saint-Georges séduit par son patrimoine architectural et culturel, ses paysages et sa douceur de vivre. La ville de 5 600 habitants dispose de toutes les commodités nécessaires au quotidien : commerces de proximité, supermarchés, professionnels de santé, ainsi que des structures pour la petite enfance et l’éducation (crèches, écoles primaires, collège).
Les habitants profitent également d’une vie associative dynamique et d’infrastructures sportives variées, dont une piscine, ainsi que de nombreux sentiers de balade et d’activités de plein air.
Vous souhaitez réaliser votre projet de maison bois à Nuits-Saint-Georges ? Contactez notre équipe pour découvrir ces terrains disponibles au lotissement Terre de Nuits et donner vie à une maison à votre image, dans un cadre naturel et serein.
