
Terrains à Beaune, dans le lotissement sécurisé « Le Domaine Saint-Pierre »
Découvrez ces 38 terrains à vendre à Beaune, situés dans le lotissement privé et sécurisé “Le Domaine Saint-Pierre”, à seulement 2 minutes du centre-ville et de l’accès à l’autoroute.
Caractéristiques :
- Terrains viabilisés
- Caméras de surveillance aux 2 entrées/sorties
- Portails électriques aux 2 entrées/sorties
Découvrir le lotissement « Le Domaine Saint-Pierre » à Beaune
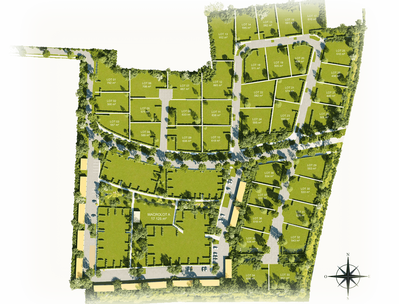
Aménagement du lotissement
Ce lotissement haut de gamme est entièrement privé et sécurisé, garantissant à ses habitants un environnement calme et harmonieux. L’accès se fait depuis la Route de Pommard et le Chemin des Rates.
Les 38 terrains constructibles sont viabilisés (électricité, télécommunications, eau potable, évacuation des eaux pluviales et usées). Leur superficie varie de 438 m² à 919 m², pour un tarif compris entre 119 480 € TTC et 204 970 € TTC.
Emplacement du lotissement
“Le Domaine Saint-Pierre” offre le meilleur des deux mondes, à savoir la tranquillité d’un cadre verdoyant, propice à la détente et la proximité immédiate du centre-ville de Beaune, de ses commerces et de ses services.
La situation est également idéale pour les déplacements, avec un accès direct aux grands axes autoroutiers reliant Dijon (30 min), Lyon ou Paris.

Caractéristiques et disponibilité
| LOT | SUPERFICIE DU TERRAIN | SURFACE
PLANCHER |
PRIX
(TVA 20% incluse) |
Estimation
Frais notaire 2,5%* |
DISPONIBILITÉ |
| 1 | 811 m² | 324 | 184 370 € | 4 609 € | LIBRE |
| 2 | 501 m² | 200 | 126 690 € | 3 167 € | LIBRE |
| 3 | 557 m² | 223 | 140 080 € | 3 502 € | LIBRE |
| 4 | 589 m² | 236 | 146 260 € | 3 657 € | LIBRE |
| 5 | 575 m² | 230 | 144 200 € | 3 605 € | LIBRE |
| 6 | 725 m² | 290 | 174 070 € | 4 352 € | LIBRE |
| 7 | 706 m² | 282 | 170 980 € | 4 275 € | LIBRE |
| 8 | 633 m² | 253 | 162 740 € | 4 069 € | LIBRE |
| 9 | 638 m² | 255 | 162 740 € | 4 069 € | LIBRE |
| 10 | 619 m² | 248 | 154 500 € | 3 863 € | LIBRE |
| 11 | 638 m² | 255 | 157 590 € | 3 940 € | LIBRE |
| 12 | 865 m² | 346 | 194 670 € | 4 867 € | OPTION |
| 13 | 919 m² | 368 | 204 970 € | 5 124 € | LIBRE |
| 14 | 596 m² | 238 | 149 350 € | 3 734 € | LIBRE |
| 15 | 582 m² | 233 | 149 350 € | 3 734 € | LIBRE |
| 16 | 585 m² | 234 | 149 350 € | 3 734 € | RÉSERVÉ |
| 17 | 625 m² | 250 | 157 590 € | 3 940 € | LIBRE |
| 18 | 511 m² | 204 | 128 750 € | 3 219 € | RÉSERVÉ |
| 19 | 505 m² | 202 | 128 750 € | 3 219 € | OPTION |
| 20 | 499 m² | 200 | 128 750 € | 3 219 € | RÉSERVÉ |
| 21 | 574 m² | 230 | 147 290 € | 3 682 € | LIBRE |
| 22 | 582 m² | 233 | 150 380 € | 3 760 € | LIBRE |
| 23 | 555 m² | 222 | 143 170 € | 3 579 € | RÉSERVÉ |
| 24 | 555 m² | 222 | 143 170 € | 3 579 € | LIBRE |
| 25 | 510 m² | 204 | 138 020 € | 3 451 € | LIBRE |
| 26 | 438 m² | 175 | 119 480 € | 2 987 € | OPTION |
| 27 | 440 m² | 176 | 119 480 € | 2 987 € | OPTION |
| 28 | 505 m² | 202 | 135 960 € | 3 399 € | LIBRE |
| 29 | 553 m² | 221 | 147 290 € | 3 682 € | LIBRE |
| 30 | 533 m² | 213 | 142 140 € | 3 554 € | LIBRE |
| 31 | 529 m² | 212 | 142 140 € | 3 554 € | LIBRE |
| 32 | 543 m² | 217 | 145 230 € | 3 631 € | RÉSERVÉ |
| 33 | 662 m² | 265 | 166 860 € | 4 172 € | OPTION |
| 34 | 668 m² | 267 | 166 860 € | 4 172 € | LIBRE |
| 35 | 534 m² | 214 | 143 170 € | 3 579 € | LIBRE |
| 36 | 518 m² | 207 | 139 050 € | 3 476 € | RÉSERVÉ |
| 37 | 511 m² | 204 | 135 960 € | 3 399 € | RÉSERVÉ |
| 38 | 534 m² | 214 | 140 080 € | 3 502 € | LIBRE |
Charges mensuelles du Domaine par maison : 15€ environ (cela comprend l’entretien des caméras, des portails, des espaces verts communs et de la voirie).
La ville de Beaune
Beaune est une agréable ville située en Côte-d’Or et à proximité de la Saône-et-Loire. Elle séduit par son patrimoine historique et culturel remarquable. Nichée au cœur du vignoble bourguignon, la commune offre un cadre de vie authentique où la nature et l’urbanisme se mêlent harmonieusement.
Au quotidien, Beaune dispose de toutes les commodités nécessaires : commerces, services de santé, équipements sportifs et culturels… Les familles bénéficient d’un cadre idéal avec plusieurs écoles maternelles et élémentaires, des collèges et lycées, ainsi qu’une bibliothèque et un espace dédié aux jeunes.
Ville dynamique et vivante, Beaune propose par ailleurs un riche tissu associatif et de nombreux événements culturels tout au long de l’année. Côté déplacements, le réseau de bus facilite les trajets locaux, tandis que la proximité des grands axes autoroutiers permet de rejoindre facilement Dijon (30 minutes), Lyon ou Paris.
Vous souhaitez faire construire votre maison à Beaune, dans un environnement calme et sécurisé ? Nos équipes vous accompagnent pour concevoir une maison bois sur mesure, respectueuse de vos envies et de votre budget.